Haz clic en el botón editar contenido para editar/añadir el contenido.

212 viviendas en Cantabria

RE

ggstudio ha desarrollado un conjunto de 212 viviendas protegidas distribuidas en seis municipios de Cantabria, diseñadas bajo criterios de sostenibilidad, inclusión y bienestar comunitario, en el marco del Plan de Recuperación, Transformación y Resiliencia. El proyecto, adjudicado por licitación pública, responde a la necesidad de ofrecer alquiler asequible o social, pero lo hace desde una visión arquitectónica integral, innovadora y profundamente humana.

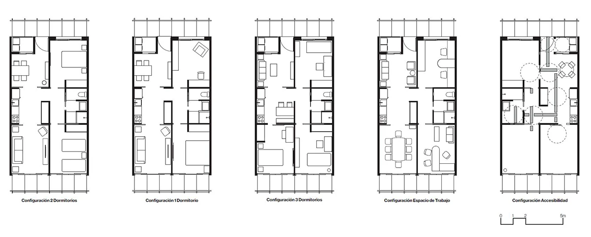
Los edificios —diversos en escala, implantación y entorno— comparten una filosofía común: repensar la vivienda social desde el confort, la eficiencia y la vida colectiva. Se adopta un modelo inspirado en el cohousing, con espacios comunes bien diseñados, zonas de encuentro y servicios compartidos que fomentan la convivencia vecinal sin sacrificar la privacidad.

Localización

Cantabria

Año

2025

Categoría

Residencial

Diseño centrado en las personas y la comunidad

  • Viviendas pasantes con ventilación cruzada y máxima iluminación natural.
  • Corredores abiertos y balcones generosos como espacios relacionales.
  • Plantas bajas con equipamientos sociales: salones multiusos, salas infantiles y espacios adaptables para actividades vecinales.
  • Áreas exteriores con juegos infantiles, zonas biosaludables y mobiliario urbano para el descanso y la interacción.
  • Accesibilidad universal en todos los bloques.
viviendas
viviendas
viviendas

Eficiencia energética como eje del proyecto

Cada bloque ha sido diseñado con un enfoque bioclimático que se adapta al clima atlántico de la región: inviernos húmedos, veranos templados y alta humedad ambiental. Las soluciones técnicas garantizan altos estándares de eficiencia energética y bajo impacto ambiental:

  • Aerotermia para climatización y agua caliente sanitaria.
  • Placas fotovoltaicas en cubierta como fuente de energía renovable.
  • Aislamiento térmico mediante sistemas SATE y carpintería de altas prestaciones.
  • Control solar con celosías, persianas y vegetación integrada.
  • Sistemas de ventilación natural y mecánica controlada (VMC).
  • Iluminación 100% LED y aprovechamiento óptimo de la luz natural.

Materiales sostenibles y gestión responsable de recursos

  • Uso de materiales reciclados y reciclables, y pinturas ecológicas.
  • Vegetación autóctona y pavimentos permeables para mejorar el microclima y la gestión del agua.
  • Espacios para recogida selectiva de residuos y fomento de la economía circular.
  • Sistemas de ahorro de agua con grifería eficiente y reutilización pasiva de pluviales.
viviendas
viviendas

Alineado con los Objetivos de Desarrollo Sostenible (ODS)

Este proyecto promueve un urbanismo socialmente justo y ambientalmente responsable. Responde a los ODS en aspectos como:

  • Salud y bienestar (ODS 3), con zonas activas y entornos seguros.
  • Igualdad de género (ODS 5), al facilitar la conciliación y el acceso equitativo a recursos comunes.
  • Energía limpia (ODS 7), Ciudades sostenibles (ODS 11) y Acción por el clima (ODS 13).
  • También apoya la reducción de desigualdades, la innovación en vivienda y un consumo más responsable.

Proyectos relacionados

Residencial

Vortex house

Hostelería & Cultural

Studio de creatividad Quique Dacosta Restaurante

Cultural

Fluidity

Residencial

Lux Unitas