Haz clic en el botón editar contenido para editar/añadir el contenido.

Qurtuba ACADEMY

HO

APRENDER EN UN ESPACIO ABIERTO

Impulsada por Paco Morales, Qurtuba Academy propone una forma distinta de aprender gastronomía: un espacio único y abierto donde los estudiantes trabajan, observan y aprenden de manera simultánea.  Más que una escuela convencional, la academia se concibe como un entorno activo de aprendizaje, en el que el conocimiento se transmite a través de la práctiva compartida y la experiencia cotidiana. Desde el primer momento, el alumno se sitúa en el centro. No hay recorridos secundarios ni espacios ocultos: todo lo que ocurre forma parte del aprendizaje. Cocinar, mirar, escuchar y discutir suceden en un mismo campo visual, reforzando una pedagogía basada en la transparencia, el compañerismo y el trabajo colectivo.

 

Localización

Córdoba

Año

2025

Categoría

Hostelería

Qurtuba Academy octubre 2503jpg

ENTENDER LO EXISTENTE COMO OPORTUNIDAD

Qurtuba Academy se sitúa en el campus de la Fundación Campus Córdoba, dentro de un edificio brutalista rehabilitado, compartido con otras escuelas y programas formativos. Proyectado originalmente por Fernando Moreno Barberá entre 1963 y 1969. Se trata de una arquitectura moderna de gran claridad estructural y espacial, reconocida por su valor patrimonial.

El proyecto ocupa el espacio de los antiguos talleres, un gran volumen de escala industrial cuya altura, profundidad y luz natural se convierten en los principales recursos de la intervención. Lejos de domesticar o subdividir el espacio original, la propuesta parte de una decisión clara: no fragmentar. Los nuevos elementos se inscriben dentro del volumen existente sin alcanzar los dientes de sierra de la cubierta, preservando la lectura del edificio y activando sus cualidades latentes.

La arquitectura no se impone sobre lo existente, sino que dialoga con una estructura moderna pensada originalmente para la enseñanza técnica, reinterpretándola para acoger un nuevo modelo pedagógico contemporáneo.

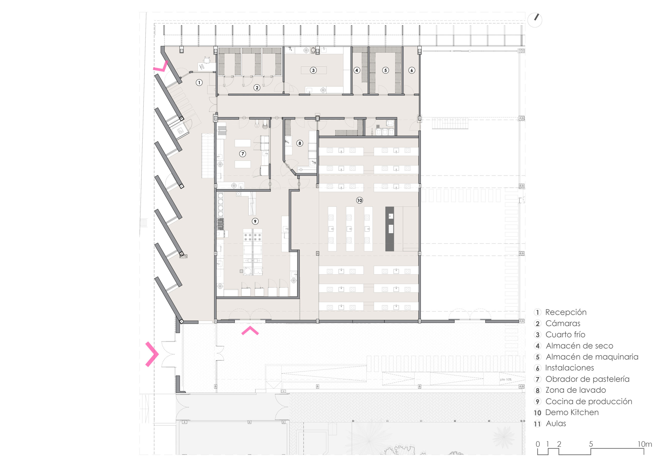
UN ÚNICO CAMPO DE APRENDIZAJE

El corazón de Qurtuba Academy es un gran espacio en el que conviven la cocina de producción, las áreas de trabajo, las aulas y la demo kitchen. No existen separaciones rígidas entre teoría y práctica: aprender significa ver trabajar a otros, compartir procesos y formar parte de una comunidad activa, donde el conocimiento se construye de manera colectiva y visible.

La demo kitchen se concibe como un elemento singular dentro de este campo común. Se organiza mediante un sistema de gradas, configurando una pequeña topografía interior que transforma la demostración culinaria en un acto compartido. Más que un escenario, funciona como un aula construida, donde el conocimiento se transmite de forma directa y visible, reforzando la atención colectiva y la dimensión pedagógica del oficio.

Esta condición espacial —poco habitual en centros de formación gastronómica— sitúa a Qurtuba Academy dentro de una tradición histórica de espacios de aprendizaje abiertos, en los que el saber se transmite a través de la observación, la práctica y la presencia compartida. Desde los talleres artesanales y las logias medievales, pasando por los espacios académicos vinculados al trabajo manual y técnico, hasta llegar a referentes modernos como Gund Hall, donde el taller continuo se consolida como el verdadero núcleo de la enseñanza, el trabajo visible se convierte en una herramienta fundamental de aprendizaje.

LA PASARELA, VER, COMPRENDER, COMPARTIR

Un elemento clave del proyecto es la pasarela longitudinal que recorre el espacio y permite comprenderlo en su totalidad. Desde ella se observa simultáneamente la cocina de producción, la demo kitchen en graderío y las áreas de aprendizaje, haciendo legible el funcionamiento completo de la academia.

La pasarela no es solo un recorrido: es una estrategia de transparencia y comunicación. Facilita el aprendizaje por observación, refuerza el sentido de pertenencia colectiva y conecta visualmente a estudiantes y docentes. Ver cómo trabajan otros se convierte en parte esencial del proceso formativo, favoreciendo una enseñanza abierta, accesible y compartida.

 

UN ECOSISTEMA CULTURAL EN EVOLUCIÓN

Qurtuba Academy es el segundo proyecto desarrollado en Córdoba para Paco Morales, tras el restaurante Noor. Ambos forman parte de un mismo ecosistema cultural que entiende la gastronomía como campo de investigación contemporánea y la historia como material activo, trabajado sin nostalgia.

 

Si Noor funciona como un laboratorio de investigación aplicada desde la cocina, Qurtuba Academy actúa como la infraestructura donde ese conocimiento se transmite y se amplifica, consolidando una comunidad de aprendizaje ligada al territorio y proyectada hacia el futuro.

ARQUITECTURA COMO HERRAMIENTA DE FUTURO

La reutilización de un edificio existente, la mínima intervención constructiva y la apuesta por un espacio abierto y colectivo sitúan el proyecto en sintonía con los debates contemporáneos sobre sostenibilidad, inclusión y calidad cultural del entorno construido. En Qurtuba Academy, la sostenibilidad se entiende como continuidad y cuidado; la inclusión, como acceso compartido al conocimiento; y la belleza, como la experiencia cotidiana de un espacio de trabajo bien hecho.

Más que una escuela, Qurtuba Academy es un modelo pedagógico construido, donde la arquitectura actúa como una herramienta activa de aprendizaje y la gastronomía se afirma como un campo cultural capaz de generar conocimiento, comunidad y futuro.

Proyectos relacionados

Hostelería

Qurtuba ACADEMY

Cultural

Frankfurt

Hostelería

Hotel SERAWA Moraira

Cultural

Centro de Artes Escénicas de Guadalajara (CAE)